RAUM AUF ZEIT

Kindergartencontainer:

Große Ansprüche für kleine Leute

Das Kindergartengebäude in Ihrem Ort wird renoviert, ein neues Gebäude zur Kita umgebaut oder Sie suchen nach einer passenden, flexiblen Raumlösung für Ihren Betriebskindergarten? - Wir von OPTIRENT bieten Ihnen ideale Kindergartencontainer-Lösungen an, mit denen Sie den großen Ansprüchen der kleinen Besucher sicher gerecht werden. Stellen Sie sich Ihren Kindergarten aus unterschiedlichen Containern zusammen, gestalten Sie die Räumlichkeiten nach Ihren Wünschen und schaffen Sie so eine Zwischenlösung, in der sich die Kinder rundum wohlfühlen können.

Informationen

Kindergarten Broschüre

Weitere Informationen im PDF-Format.

Download PDF 6,93 MB

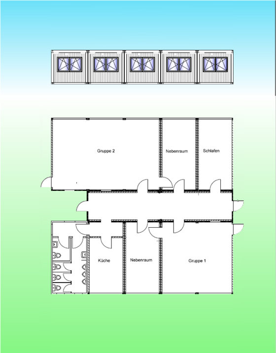
Mustergrundrisse

Kindergarten 1-gruppig

OPTILine Containeranlage bestehend aus 5 Containern Typ T1 S, 1 Container Typ T4

Download PDF 71,90 KB

Kindergarten 2-gruppig

OPTILine Containeranlage bestehend aus 9 Containern Typ T1, 1 Container Typ T4

Download PDF 79,53 KB

Kindergarten 3-gruppig

OPTILine Containeranlage bestehend aus 20 Containern Typ T1 S, 4 Containern Typ T1, 2 Containern Typ T4,

Download PDF 130,78 KB

Kindergarten 4-gruppig

OPTILine Containeranlage bestehend aus 25 Containern Typ T1 S,1 Container Typ T1, 2 Containern Typ T4,

Download PDF 135,77 KB

Kindergartenplätze:

Der Bedarf steigt

 

Die Nachfrage nach Betreuungsplätzen für Kinder zwischen einem und fünf Jahren stieg in den letzten Jahren immer mehr an. Nicht zuletzt durch die Gesetzesanpassung aus dem August 2013, die jedem Kind zwischen einem und drei Jahren einen Betreuungsplatz zusichert, wird der Druck größer. Kommunen und freie Träger sind in der Pflicht, dieser Nachfrage durch die Schaffung von Kindergärten und Kitas gerecht zu werden.

Kindergartencontainer sind hier oft die optimale Lösung, um in kurzer Zeit hochwertige Betreuungsräumlichkeiten zur Verfügung zu stellen.

Die Container-Varianten von OPTIRENT können flexibel kombiniert und bis zu drei Etagen aufgestapelt werden. Damit bilden sie die ideale Basis für einen Interims-Kindergarten.

Kindergartenräume

optimal gestalten und rentabel mieten

 

Wenn Sie Kindergartencontainer mieten möchten, liegt Ihr Hauptaugenmerk vermutlich darauf, Räume zu schaffen, in denen die Kinder sich rundum wohlfühlen. Die Flexibilität, die Ihnen unsere Container-Module bieten, ermöglicht Ihnen ein optimales Eingehen auf die kindlichen Vorlieben bei der Gestaltung der Kita-Container. Barrierefreier Zugang, große Fenster, bunte Farben, helle Räume - alles ist möglich, sprechen Sie uns gern an! Natürlich bieten wir Ihnen auch entsprechende Einrichtungsgegenstände wie eine kindgerechte Ausstattung der Sanitärraume oder entsprechende, kleine Möbel für die Gruppenräume.

 

Hochwertige Materialien

Selbstverständlich sind unsere Container aus hochwertigen, schadstofffreien Materialien gefertigt und verfügen in jedem Fall über neueste technische Ausrüstung. Dadurch erhalten Sie Räumlichkeiten für Ihren Interims- oder Betriebskindergarten, die nicht nur klimatisch (durch optimale Dämm-Eigenschaften sowie moderne Heizungs- und Klimaanlagen), sondern auch in Puncto Lärmschutz den Anforderungen an eine Kindertagesstätte vollends zu genügen wissen. Durch diese zeitgemäße Ausstattung steht die Zwischenlösung normalen Gebäuden in nichts nach.

 

Waschraum, Küche, Gymnastikraum: Alles was ein Kind braucht

Sie wollen Ihren Containerkindergarten für den Übergang möglichst genauso ausstatten, wie das gewohnte Kindergarten-Gebäude? Oder schwebt Ihnen für Ihren Betriebskindergarten ein umfangreiches Angebot an Beschäftigungsmöglichkeiten vor, die auch räumlich umgesetzt werden sollen? - Spielraum, Bastelraum, Schlafraum, Turnraum: Unsere Container-Module können für die Kleinen nahezu jede Raumanforderung erfüllen. Natürlich ist auch die Umsetzung von Küche, Toiletten und Waschräumen problemlos möglich. Auch hier gehen wir bei der Planung auf die besonderen Bedürfnisse der Kinder ein.

Ob für den kurzfristigen Kindergarten-Ersatz oder die langfristige Raumlösung: Wir bieten Ihnen passende Mietcontainer. Unsere Serie OPTILine verfügt über alle wesentlichen Ausstattungsmerkmale; für gehobenere Ansprüche bieten wir außerdem die Serie OPTILuxe. Beide Container-Arten sind natürlich auch als Schulcontainer bei der Instandsetzung oder dem Ausbau von Schulen nutzbar. In unseren Containern erhalten die Schüler optimale Lernbedingungen bis das Schulgebäude wieder einsatzbereit ist.

OPTIRENT Container

vielfältig nutzen

 

Wenn Sie bei OPTIRENT Container mieten, können Sie diese natürlich nicht nur als Kindergartencontainer oder Interims-Schulen einsetzen. Wir bieten Ihnen passende Lösungen für diverse Übergangs-Räumlichkeiten in den Bereichen Industrie, Öffentliche Hand oder für Dienstleister. Nutzen Sie unsere Containeranlagen z.B. als Bürocontainer, Verkaufscontainer oder Pförtnercontainer für Ihr Gewerbe. Natürlich ist auch ein Einsatz als klassischer Baustellencontainer möglich, dann auch in Kombination mit passenden Lagercontainern, Sanitär- und Wohncontainern. Sie sehen: Wir bieten Ihnen die Möglichkeit, auch umfangreiche oder langfristige Bauprojekte komplett aus einer Hand mit benötigten Räumlichkeiten zu versorgen. Nehmen Sie jetzt Kontakt zu uns auf und lassen Sie sich zu unseren Produkten, unterschiedlichen Einsatzbereichen und unserem attraktiven Rundum-Service beraten.